Locale commerciale 80 mq2 - Piano Terra

Ufficio Monte Marenzo

  • € 500
  • 5 Numero localilocali
  • 3 Numero bagnibagni
  • Nessuno Presenza boxbox
  • 80 m²superficie

Descrizione

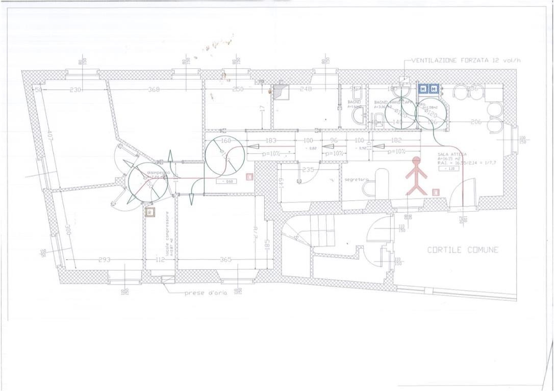
Su strada di passaggio, proponiamo al piano terra locale commerciale di circa 80 mq suddiviso come segue: ingresso con sala d'attesa, bagno per clienti con antibagno, quattro studi attrezzati con lavandini ed attacchi acqua e corrente a pavimento, spogliatoio con bagno per il personale, due locali pluriuso e locale tecnico. L'immobile è privo di barriere architettoniche.
Riscaldamento autonomo di tipo Fancoil.
Nessuna spesa condominiale.
Ideale per molteplici attività (studio medico, dentistico, estetica..).
Possibilità di parcheggio nelle immediate vicinanze.
Possibilità di acquistare l'immobile ad €80.000.
Contattaci per maggiori informazioni o per prenotare una visita senza impegno!

Dati principali

Codice riferimento: 5599
Comune: Monte Marenzo
Categoria: Affitto
Superficie: 80 m²
Locali: 5
Arredato: Non Arredato
Numero bagni: 3
Piano: Terra
Totale piani: 2
Spese Condominiali: No
Riscaldamento: Autonomo
Box: Nessuno
Giardino: No
Giardino Condominiale: No
IPE Rinnovabile: 25,24 KWh/m²a
Edificio energia quasi zero: No
Efficienza invernale:
Efficienza estiva:
Efficienza energetica

EFFICIENZA ENERGETICA

Classe D Ipe 338,04 KWh/m²a

Planimetria

Mappa

Richiedi informazioni senza impegno

Invia un messaggio

 Autorizzo al trattamento dei miei dati personali ai sensi del D.L.30 giugno 2003 196/2003*

Servizio MUTUI

Vuoi un preventivo
personalizzato e gratuito?

Scopri di più
Newsletter agenzia immobiliare

Iscriviti alla Newsletter

Rimani connesso con Immobiliare Frigerio per novità e tanto altro!