TRILOCALE RISTRUTTURATO CON ASCENSORE - CLASSE ENERGETICA B 105 mq2 - Piano 1°

Appartamento Caprino Bergamasco

  • € 139.000
  • 3 Numero localilocali
  • 1 Numero bagnibagni
  • Nessuno Presenza boxbox
  • 105 m²superficie

Descrizione

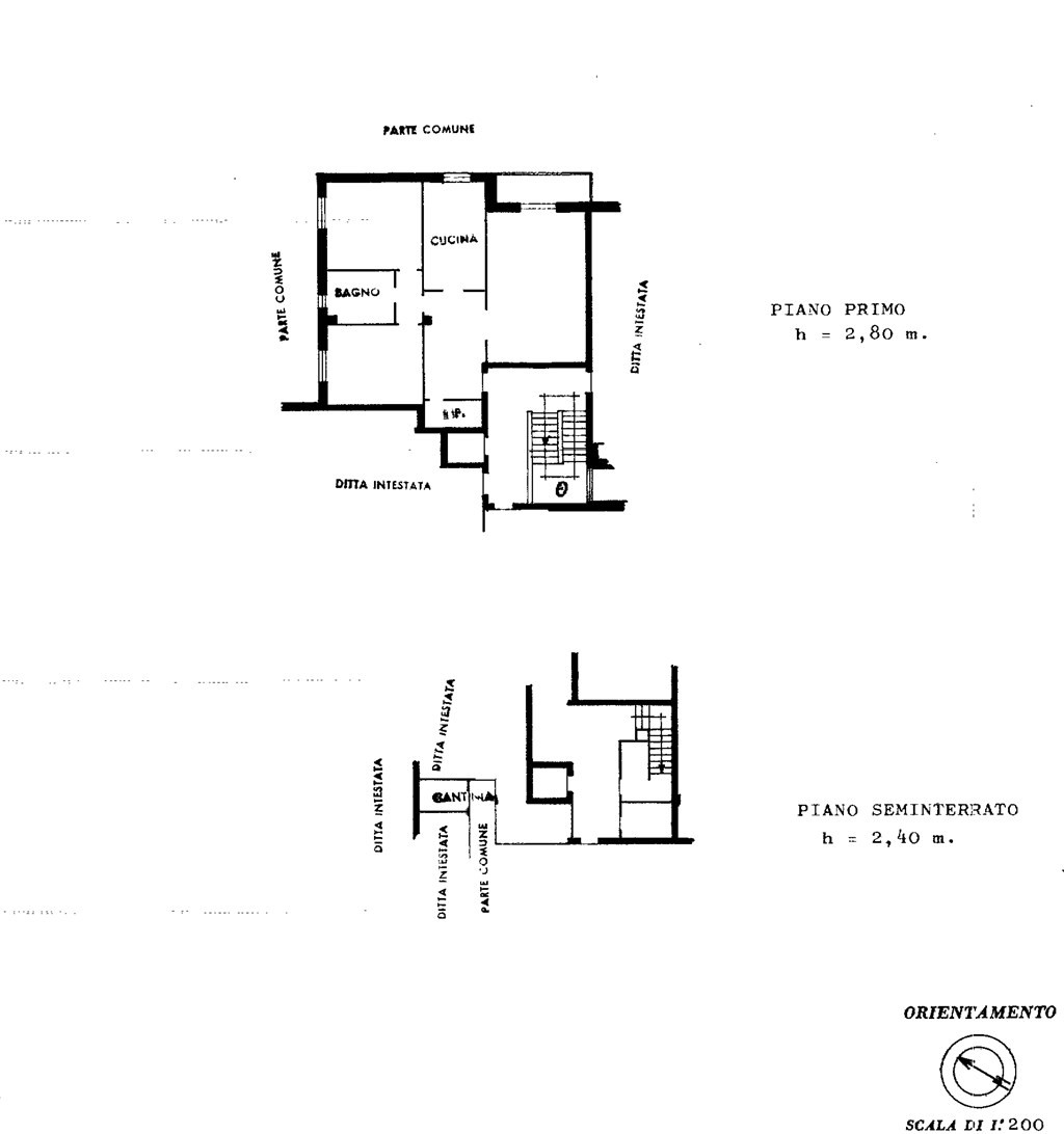
Al confine con Cisano Bergamasco, in posizione comoda e ben servita, proponiamo in vendita ampio appartamento trilocale situato al primo piano di un condominio servito da ascensore.

L’ingresso conduce a un pratico disimpegno con ripostiglio, dal quale si accede al luminoso soggiorno con uscita su balcone vivibile, ideale per momenti di relax. La cucina è separata e abitabile, perfetta per chi desidera ambienti funzionali e ben organizzati.
La zona notte è composta da disimpegno, due camere da letto matrimoniali e bagno finestrato con doccia.
L’appartamento è stato recentemente ristrutturato, si presenta in ottime condizioni interne ed è venduto completamente arredato, pronto per essere abitato senza ulteriori interventi!

Dotazioni e interventi recenti:
– riscaldamento autonomo con caldaia a condensazione di nuova installazione
– infissi in PVC con doppio vetro
– cappotto termico e tetto condominiale nuovi

L’immobile è in classe energetica B, garanzia di comfort abitativo ed elevata efficienza, con una sensibile riduzione dei consumi.
Inoltre, la classe energetica consente l’accesso a mutui green con tassi agevolati previsti da diversi istituti di credito.

Completa la proprietà una comoda cantina.
Soluzione ideale per chi cerca un’abitazione moderna, efficiente e pronta da vivere, in contesto servito e con spese di gestione contenute.

Contattaci per maggiori informazioni o per fissare una visita senza impegno.

Dati principali

Codice riferimento: 5713
Comune: Caprino Bergamasco
Categoria: Vendita
Superficie: 105 m²
Locali: 3
Arredato: Arredato
Numero bagni: 1
Piano:
Totale piani: 4
Spese Condominiali: 766 €
Riscaldamento: Autonomo
Box: Nessuno
Giardino: No
Giardino Condominiale: No
IPE Rinnovabile: 0,25 KWh/m²a
Edificio energia quasi zero: No
Efficienza invernale:
Efficienza estiva:
Efficienza energetica

EFFICIENZA ENERGETICA

Classe B Ipe 56,33 KWh/m²a

Planimetria

Mappa

Richiedi informazioni senza impegno

Invia un messaggio

 Autorizzo al trattamento dei miei dati personali ai sensi del D.L.30 giugno 2003 196/2003*

Servizio MUTUI

Vuoi un preventivo
personalizzato e gratuito?

Scopri di più
Newsletter agenzia immobiliare

Iscriviti alla Newsletter

Rimani connesso con Immobiliare Frigerio per novità e tanto altro!