NEGOZIO IN CENTRO CALOLZIOCORTE 118 mq2 - Piano Terra

Negozio Calolziocorte

  • € 78.000
  • 2 Numero localilocali
  • --- Numero bagnibagni
  • --- Presenza boxbox
  • 118 m²superficie

Descrizione

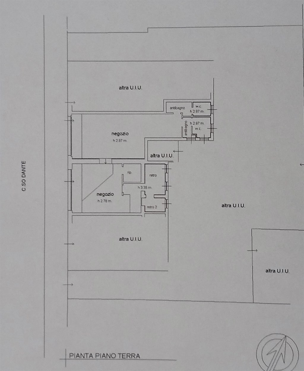
Nel cuore di Calolziocorte, affacciato su Corso Dante, proponiamo in vendita ampio spazio commerciale di 118 mq, ideale per attività di vendita al dettaglio, studi professionali o showroom.

L’immobile si trova in zona di forte passaggio pedonale e carrale, garantendo ottima visibilità grazie alla vetrina fronte strada. Dispone di due spaziosi locali, facilmente suddivisibili in base alle esigenze, oltre a locale di servizio, bagno disabili e ripostiglio.

Per maggiori informazioni o per fissare una visita, non esitare a contattarci.

Dati principali

Codice riferimento: 5634
Comune: Calolziocorte
Categoria: Vendita
Superficie: 118 m²
Locali: 2
Arredato: Non Arredato
Numero bagni: ---
Piano: Terra
Totale piani: ---
Spese Condominiali: No
Riscaldamento: Autonomo
Box: No
Giardino: No
Giardino Condominiale: No
IPE Rinnovabile: 44,11 KWh/m²a
Edificio energia quasi zero: No
Efficienza invernale:
Efficienza estiva:
Efficienza energetica

EFFICIENZA ENERGETICA

Classe C Ipe 282,06 KWh/m²a

Planimetria

Mappa

Richiedi informazioni senza impegno

Invia un messaggio

 Autorizzo al trattamento dei miei dati personali ai sensi del D.L.30 giugno 2003 196/2003*

Servizio MUTUI

Vuoi un preventivo
personalizzato e gratuito?

Scopri di più
Newsletter agenzia immobiliare

Iscriviti alla Newsletter

Rimani connesso con Immobiliare Frigerio per novità e tanto altro!