TRILOCALE CON BOX, CANTINA E GIARDINO 110 mq2 - Piano 1°

Appartamento Cisano Bergamasco

  • € 125.000
  • 3 Numero localilocali
  • 1 Numero bagnibagni
  • Singolo Presenza boxbox
  • 110 m²superficie

Descrizione

In posizione panoramica e tranquilla, a pochi minuti dal centro di Cisano Bergamasco, proponiamo spazioso appartamento al piano rialzato con giardino di proprietà, completamente pianeggiante e recintato, ideale per chi cerca privacy e spazi verdi da vivere in ogni stagione.
L’immobile si distingue per gli ambienti interni confortevoli e ben distribuiti, perfetti sia per famiglie che per chi desidera spazi generosi e funzionali. Gode di un'ottima esposizione solare e si trova in ottime condizioni di manutenzione.
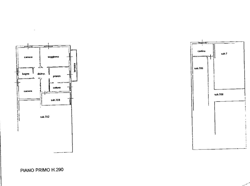
Internamente composto da: ingresso, soggiorno, cucina abitabile, balcone panoramico, disimpegno, due camere matrimoniali e bagno con doccia recentemente ristrutturato.
Completano la proprietà un ampio box auto e una spaziosa cantina direttamente collegata, ideale come locale hobby, lavanderia o deposito.
Soluzione interessante in una zona residenziale riservata, immersa nel verde, ma comoda a tutti i principali servizi.
Riscaldamento autonomo, serramenti in PVC con doppio vetro e porta d'ingresso blindata.
Contattaci per maggiori informazioni o per prenotare una visita senza impegno!

Dati principali

Codice riferimento: 5703
Comune: Cisano Bergamasco
Categoria: Vendita
Superficie: 110 m²
Locali: 3
Arredato: Non Arredato
Numero bagni: 1
Piano:
Totale piani: 3
Spese Condominiali: 700 €
Riscaldamento: Autonomo
Box: Singolo
Giardino: 500
Giardino Condominiale: 300
IPE Rinnovabile: No
Edificio energia quasi zero: No
Efficienza invernale:
Efficienza estiva:
Efficienza energetica

EFFICIENZA ENERGETICA

Classe F Ipe 203,69 KWh/m²a

Planimetria

Mappa

Richiedi informazioni senza impegno

Invia un messaggio

 Autorizzo al trattamento dei miei dati personali ai sensi del D.L.30 giugno 2003 196/2003*

Servizio MUTUI

Vuoi un preventivo
personalizzato e gratuito?

Scopri di più
Newsletter agenzia immobiliare

Iscriviti alla Newsletter

Rimani connesso con Immobiliare Frigerio per novità e tanto altro!